Home
Portfolio
SERVICES
SCHEDULE A SHOOT
E-Mail US
Call Us
Pre-Shoot Checklist
Home
Portfolio
SERVICES
SCHEDULE A SHOOT
E-Mail US
Call Us
Pre-Shoot Checklist
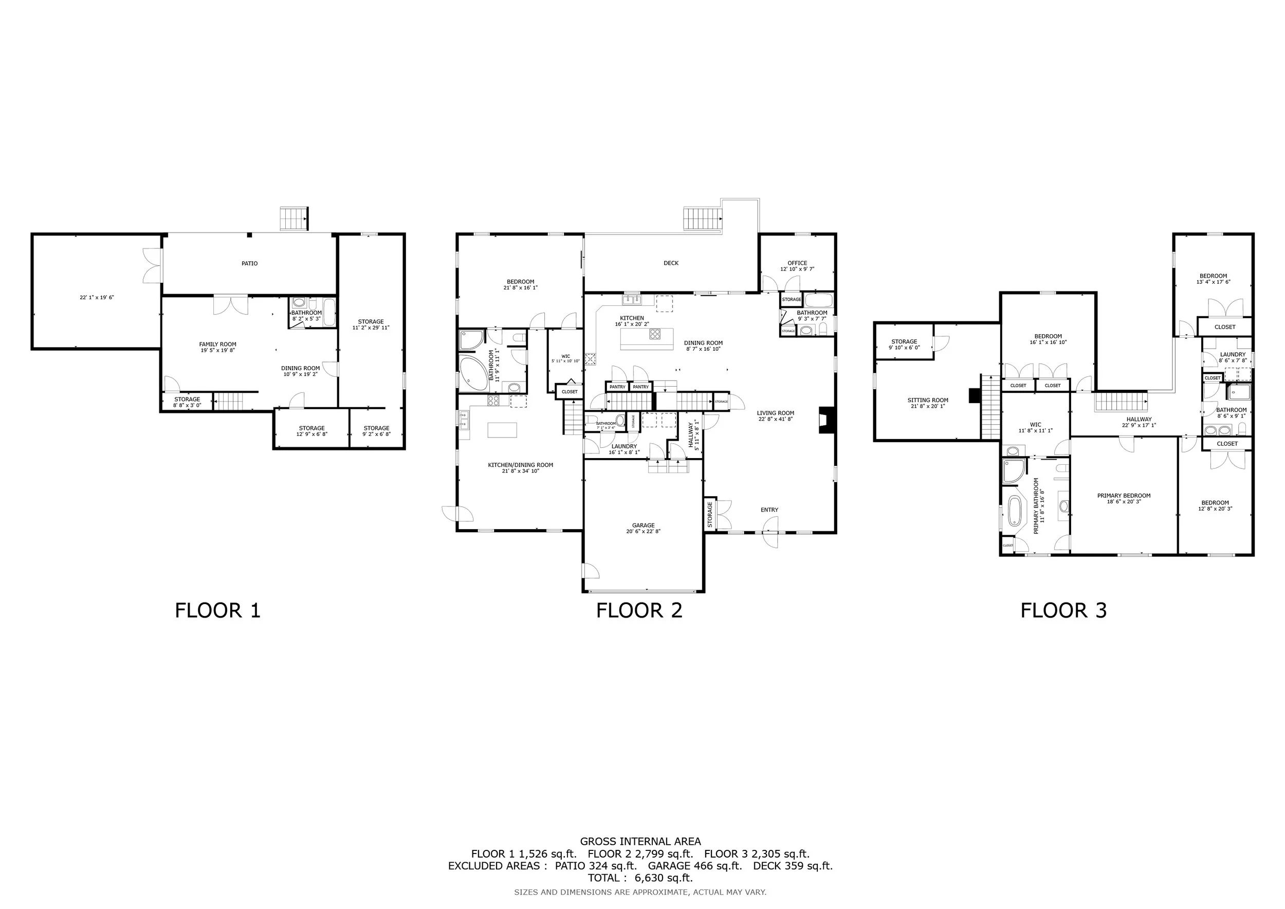
9159 Woodland Way N, Owings, MD 20736
- Jennifer De La Rosa of Keller Williams Centre