Home
Portfolio
SERVICES
SCHEDULE A SHOOT
E-Mail US
Call Us
Pre-Shoot Checklist
Home
Portfolio
SERVICES
SCHEDULE A SHOOT
E-Mail US
Call Us
Pre-Shoot Checklist
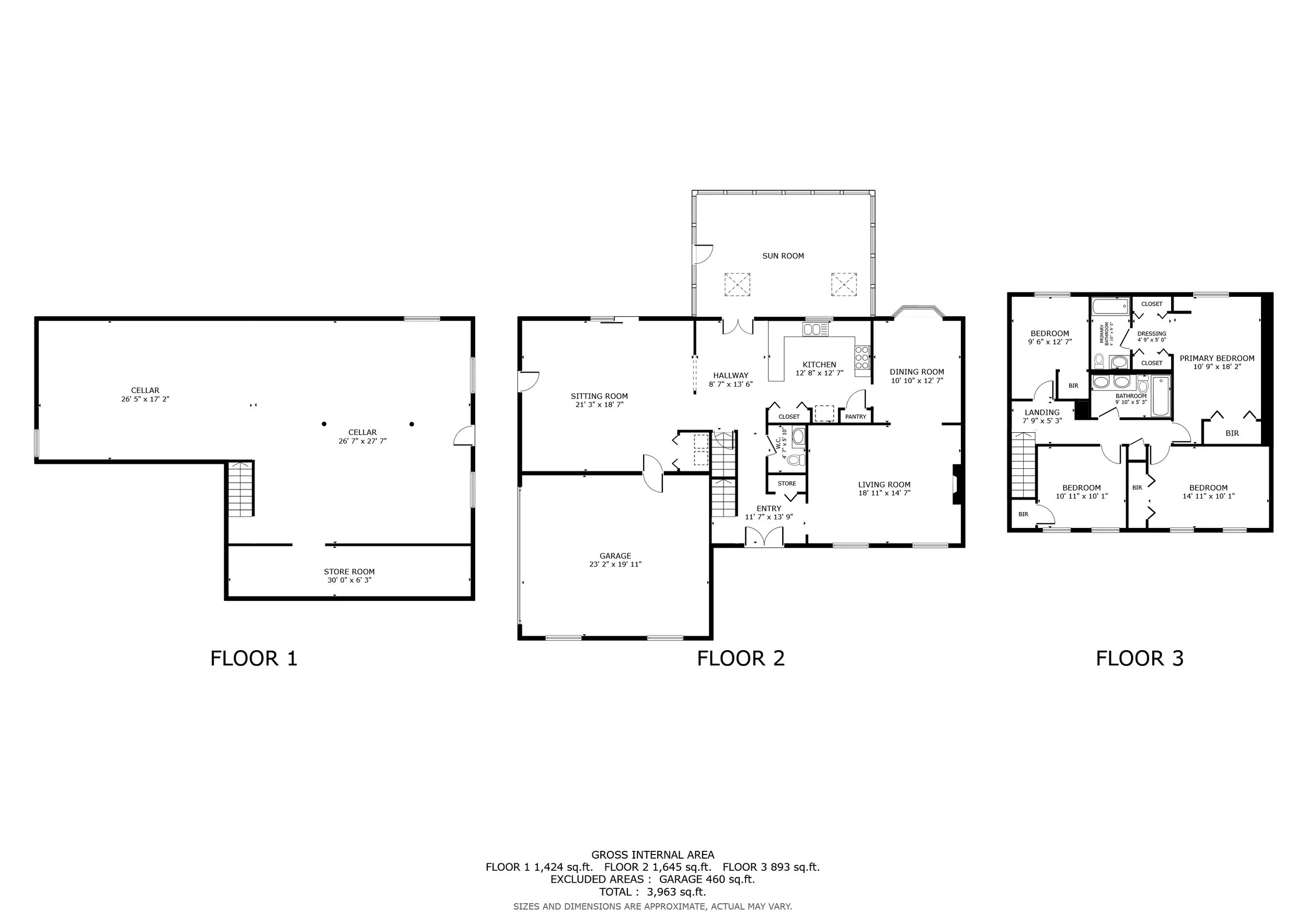
3242 Sharp Rd, Glenwood, MD 21738
- The Jennifer De La Rosa Group of Keller Williams Integrity